《郑州航空港经济综合实验区先进制造业集聚区4102230001单元第N-08-01-02(N-06-02-04)、N-15-01-01、N-16-01-01地块控制性详细规划》,《郑州航空港经济综合实验区先进制造业集聚区4102230005单元第N-01-01-04、05、06地块控制性详细规划》公示
为控制和引导郑州航空港经济综合实验区第N-08-01-02(N-06-02-04)、N-15-01-01、N-16-01-01地块,第N-01-01-04、05、06地块的开发建设,我局组织编制了该街坊的控制性详细规划,根据《中华人民共和国城乡规划法》、《关于城乡规划公开公示的规定》、《郑州市城乡规划公开公示暂行办法》等法律法规的要求,现予以公示:
一、项目名称:《郑州航空港经济综合实验区先进制造业集聚区4102230001单元第N-08-01-02(N-06-02-04)、N-15-01-01、N-16-01-01地块控制性详细规划》,《郑州航空港经济综合实验区先进制造业集聚区4102230005单元第N-01-01-04、05、06地块控制性详细规划》。
二、编制单位:郑州市规划勘测设计研究院有限公司。
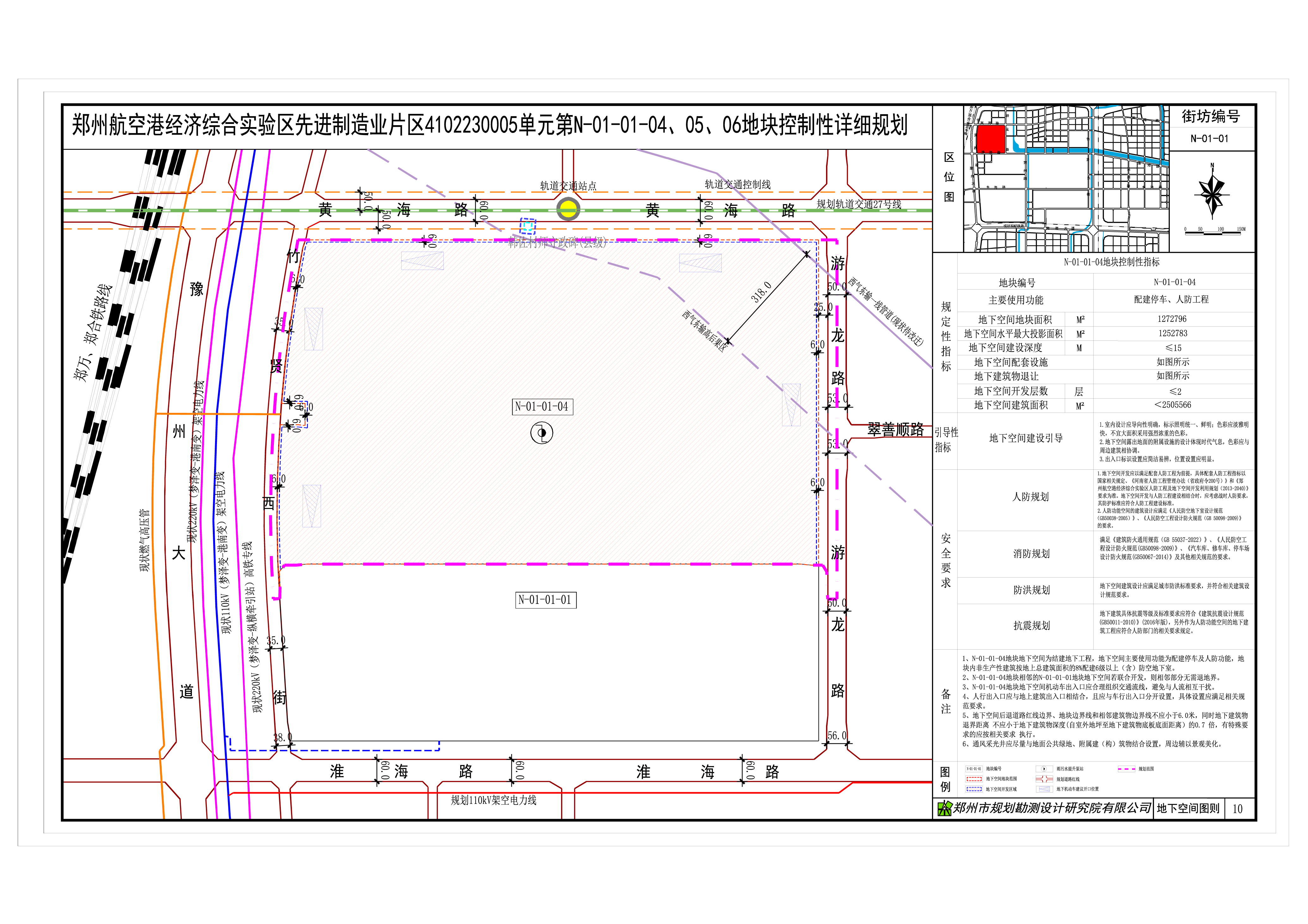
三、项目概况:本次规划项目的范围位于郑州航空港经济综合实验区先进制造业片区内,分别位于4102230001单元以及4102230005单元,用地总面积为966.92公顷(14504亩),其中位于4102230001单元的规划范围由淮海路、竹贤东街、东海路、兖州路、灵润路、竹贤南路、徐州路、隆泰街所围合区域,用地面积832.86公顷;位于4102230005单元的规划范围由游龙路、黄海路、竹贤西街、淮海路所围合区域,用地面积134.06公顷。
公示内容:
1、区位图
2、用地现状图-01
3、用地现状图-02
4、土地使用规划图-01
5、土地使用规划图-02
6、指标表-01
7、指标表-02
8、地下空间图-01
9、地下空间图-02
公示期: 2025年4月1日至2025年4月30日
联系电话:58551660 巩丰维
郑州航空港经济综合实验区自然资源和规划局
2025年4月1日
